Das Projekt


Auf einem Grundstück von ca. 1275 m² entsteht dieses Mehrfamilienhaus mit 15 modernen Neubau-Eigentumswohnungen. Das 4. OG wird als zurückspringendes Staffelgeschoß ausgebildet. In Verbindung mit dem Flachdach und den symmetrisch angeordneten Fensterflächen erhält die Fassade ein zeitloses und modernes Erscheinungsbild. Während sich die beiden Eingänge entlang der Mannheimer Strasse erstrecken, öffnet sich das Gebäude mit seinen Gärten, Balkonen und Dachterrassen in Richtung Südwesten. Angrenzend an die Gärten läuft ein schön angelegter Fußweg durch das neue Quartier.

Wohnen ohne Kompromisse

Der massive Echtholzparkettboden sorgt für ein angenehmes Wohngefühl und ist für viele Einrichtungsstile offen. Sie mögen es im Winter angenehm warm und im Sommer gerne kühl? Mit der Erdwärmeheizung mit Sonde kein Problem: Durch die Fußbodenheizung haben Sie im Winter wohlig warme Füße. Im Sommer verhält es sich dann umgekehrt und die Heizung wird im Natural-Cooling-Modus genutzt.

In den Schlafzimmern ist Platz für einen Kleiderschrank mit Stauraum. Dank elektrischer Alu-Rollläden ist hier für die Wahrung der Privatsphäre gesorgt. 

Im Wohn-/Essbereich können Sie durch elektrische Außenjalousien beschatten, vor Einblicken schützen oder das Tageslicht nach Ihren Bedürfnissen regulieren.

Ein weiteres Highlight dieser Wohnungen sind die modernen Einbauküchen inklusive Spüle, Kochfeld, Abzugshaube, Backofen und Spülmaschine. Ihre individuellen Wünsche und Vorstellungen werden natürlich gerne berücksichtigt (ggf. gegen Aufpreis).

Eigentlich müssen Sie nur noch einziehen, denn auch die Wände sind mit Malervlies tapeziert und weiß gestrichen. 

VR-Tour - Wohnung B7

Architektur

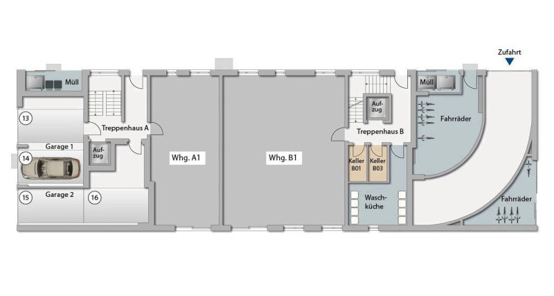
Das Konzept mit barrierefreiem Eingangsbereich und einem Fahrstuhl über alle Geschosse ist für viele Lebenssituationen offen. Mühsame Parkplatzsuche gehört der Vergangenheit an, denn in der ebenerdigen Garage ist Ihnen ein Stellplatz für Ihren Pkw sicher.
Einkäufe bringen Sie mit dem Aufzug problemlos in Ihre Wohnung. Der ebenerdige Fahrradraum wiederum erleichtert das sichere Abstellen von Fahrrädern.
Ein gemeinschaftlich nutzbarer Sitz- und Spielbereich bietet der Hausgemeinschaft die Gelegenheit zu einem unverbindlichen Treffpunkt und Austausch unter Nachbarn.
Durch die Einhaltung des KfW-Effizienhaus 55-Standarts sparen Sie bares Geld: Über die KfW haben Sie die Gelegenheit zu günstigen Krediten.

Ihre Vorteile

  • Jede Wohnung mit Garten, Balkon oder Dachterrasse mit Südwestausrichtung

  • Barrierefreie Hauszugänge

  • Barrierefreie Wohnungen im EG (lt. LBO)

  • Aufzug von der Tiefgarage zu den Wohnetagen

  • Tiefgarage sowie zusätzliche Carports und Außenstellplätze

  • Gemeinschaftsbereich mit Sitz- und Spielgelegenheit

  • Fördergelder vom Staat durch KfW-Effizienzhaus 55-Standard

Die Ausstattungs Highlights

  • Einbauküchen inklusive Elektrogeräte

  • Videogegensprechanlage

  • Elektrische Außenjalousien in Küche, Ess- und Wohnzimmer

  • Elektrische Alu-Rollläden in den Schlafzimmern und Bädern

  • Hochwertiges Echtholzparkett

  • Erdwärmeheizung mit Fußbodenheizung und Natural-Cooling

  • Entkalkungsanlage

  • Regendusche und randloses WC

  • Bodenfliesen 60 x 60 cm

  • Verkabelung für ein dezentrales Bussystem

  • Wandbeläge (Malervlies) weiß gestrichen

Gute Anbindung, naturnahe Umgebung, umfangreiches Freizeitangebot

Durch die B36 und das zuverlässige Stadtbahn- und Busliniennetz verfügt Linkenheim-Hochstetten über eine perfekte Anbindung an die Region und darüber hinaus. In rund 15 Minuten erreichen Sie mit dem Auto Karlsruhe, wo ein reichhaltiges Kulturangebot der badischen Residenzstadt wartet. Der Großraum Karlsruhe hat sich zu einer Wissenschafts-, Forschungs- und Hightechregion entwickelt, die im internationalen Markt zunehmend an Bedeutung gewinnt.
Das spürt man auch in Linkenheim-Hochstetten: Die Nähe zum KIT, einem der größten, krisensicheren Arbeitgeber der Stadt, sorgt für dauerhaftes Wachstum. In nur acht Minuten sind Sie mit dem Auto am KIT Campus Nord. Wenn Sie sich fit halten möchten können Sie die Strecke problemlos in einer Viertelstunde mit dem Rad zurücklegen.
Das Mehrfamilienhaus entsteht in beliebter Wohnlage von Linkenheim-Hochstetten. Alles was Sie zum täglichen Leben brauchen ist in wenigen Minuten zu Fuß zu erreichen. Neben diverser Einkaufsmöglichkeiten wartet die Gemeinde mit Schulen, Turn- und Sportstätten, Arztpraxen, Apotheken und einem vielseitigen Angebot an Restaurants auf. Zudem bieten die vier Baggerseen Erholungsuchenden und Freizeitsportlern ein reiches Angebot an Aktivitäten.
Die nahen Felder und Wiesen laden zu leichten Wanderungen entlang zahlreicher Feldwege ein, denn die Lage in der klimatisch begünstigten Rheinebene verspricht viele Sonnentage. Auch an Zielen für Radtouren oder Nordic Walking wird es hier nicht fehlen. Wer es lieber schattig mag, kann bei einen erholsamen Besuch des Baumlehrpfads im nahgelegenen Hardtwald die Seele baumeln lassen.

Kontakt

Gerne senden wir Ihnen weitere Informationen zu.

Bitte benutzen Sie das untenstehende Kontaktformular.



Mit dem Versenden der Kontaktanfrage erklären Sie sich einverstanden, dass wir Ihre Daten zur Kontaktaufnahme nutzen dürfen. Lesen Sie mehr dazu in unserer Datenschutzerklärung. *

Adresse
Kontakt